In the heart of downtown New Braunfels stands a building that has witnessed nearly a century of civic life: Old City Hall, constructed in 1929 from the designs of renowned local architect Jeremiah Schmidt. Originally conceived as the center of municipal governance, this Art Deco structure has long symbolized the progressive spirit and architectural elegance of its time.
By the early 21st century, Old City Hall stood at a crossroads—still sturdy in form, but fading in function. That’s when Dibello Architects was entrusted with a transformative challenge: to breathe new life into this historic structure while preserving the legacy it represents.


Schmidt’s design for Old City Hall was a masterclass in early 20th-century civic architecture. With its clean lines, geometric patterns, and signature Art Deco detailing, the building stood apart from others in town: modern for its time, yet grounded in local materials and traditions.
Inside, tile flooring, wood interiors, and period lighting fixtures remained intact, bearing witness to nearly 100 years of community service. As Schmidt intended, it was a place that balanced form and function, elegance and efficiency.
But like so many historic buildings, Old City Hall needed more than admiration, it needed purpose.
At Dibello Architects, we believe that great buildings don’t expire—they evolve. Our work on Old City Hall with the Wiggins Hospitality Group was guided by a philosophy of adaptive reuse, one that honors the original architect’s intent while tailoring the structure for modern needs. In this case, the project was to reignite the activity in downtown New Braunfels by transforming the space into an elegant restaurant.
We approached the project with a deep respect for both Schmidt’s architectural legacy and the cultural identity of New Braunfels. We looked to other successful restaurants in the region and studied the strengths and weaknesses of the designs to inform our direction. Our team, which includes many Central Texans and New Braunfels residents, understood just how personal this building is to the community, and ensured that the renovation would be respectful and exciting for the local residents.

Our approach to Old City Hall was rooted in respecting its historic architecture while boldly reimagining its purpose—not just as a preserved landmark, but as a destination for elevated experiences. What was once the center of civic life is now being reborn as a refined, high-end dining establishment, a space that honors its past while offering something truly unique to the future of downtown New Braunfels.
Key elements of the transformation include:
• Preservation of Architectural Character
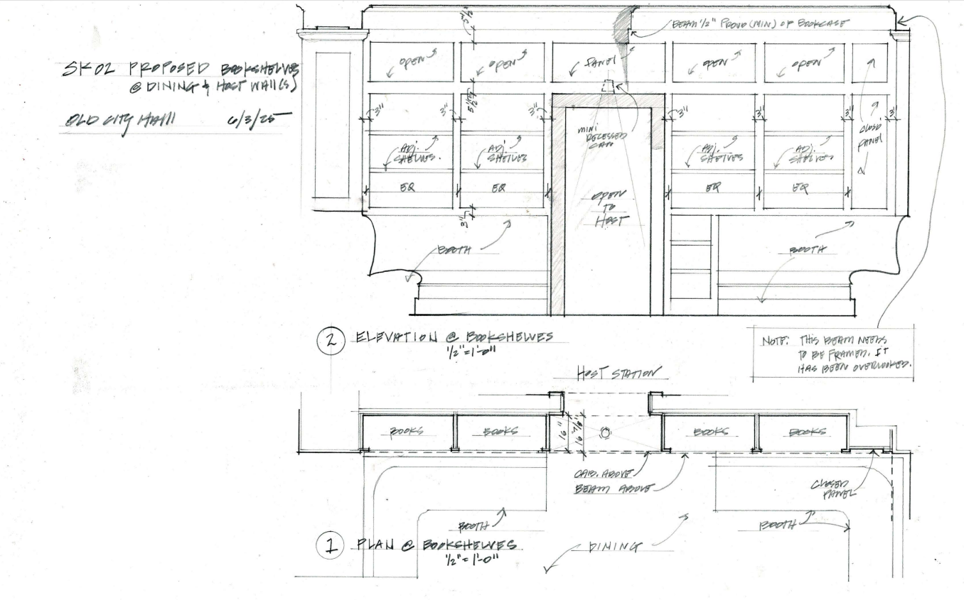
The original bones of the building—its Art Deco shell, tile floors, and interior wood detailing—have been carefully preserved and elevated. The main dining space, housed within the original structure, now features well-crafted wood-paneled booths and custom lighting fixtures that echo the building’s early 1900s elegance, reviving its historic warmth and charm.
• An Indoor-Outdoor Experience
To connect diners with the lively streetscape of downtown, we designed a new outdoor dining area that flows seamlessly from the interior. It serves as an open-air extension of the restaurant’s social energy, offering guests a more relaxed, atmospheric setting.
• Wood-Framed Views & Social Connection
Large floor-to-ceiling wood windows and a reimagined bar area allow passersby to visually connect with the space. These openings showcase the activity and ambiance inside, inviting curiosity and reinforcing the restaurant’s place in the city’s social fabric.
• Curated Private Dining
An intimate, private dining room has been introduced, available for reservations or events. These rooms offer a more personal, curated experience while maintaining a visual and material connection to the building’s historic design language.
• A New Civic Anchor Through Design
While no longer serving its original municipal function, Old City Hall is once again positioned as a cornerstone of downtown life. With its thoughtful fusion of craftsmanship, hospitality, and architectural continuity, the building has evolved into the shining star of downtown New Braunfels, where history and modern elegance meet.
Today, Old City Hall stands not as a relic, but as a revitalized landmark—a place where the past is celebrated, and the future is welcomed. Through this project, Dibello Architects has extended Jeremiah Schmidt’s vision into a new century, turning a dormant civic building into a vibrant community asset.
It is now a place for gatherings instead of governance, but its essence remains unchanged: dignified, functional, and deeply rooted in the New Braunfels story.
At Dibello Architects, we build what belongs. Our work is guided by the belief that architecture should feel like it’s always been there—timeless, honest, and beautifully suited to its site and story. With Old City Hall, we didn’t just restore a building—we helped carry forward a legacy of civic pride, architectural integrity, and cultural continuity.